Beschreibung
Intersteel Schiebetürsystem für Glastüren
Artikelnummer: 0023.450125
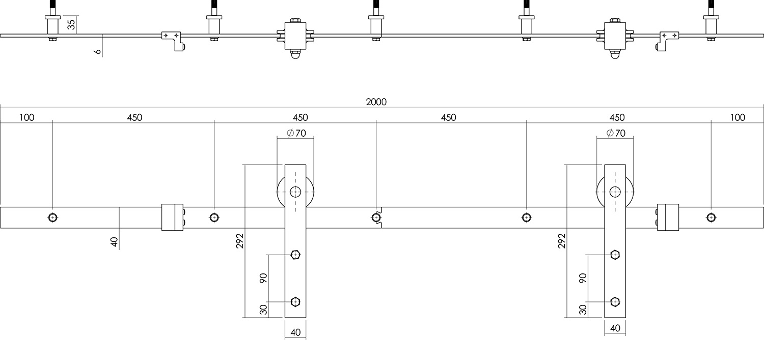
Dieses Schiebetürsystem aus Stahl hat eine mattschwarze Pulverbeschichtung. Dieses System hat eine maximale Tragfähigkeit von 100 kg, ist einfach zu montieren und eignet sich für Glastüren von 8 mm - 12 mm Dicke. Intersteel hat ein einfaches Schiebetürsystem, das aus zwei 100 cm langen Stahlschienen besteht. Außerdem besteht dieses Set aus zwei geraden Hängerollen mit einer Länge von 29 cm. Zur sicheren Führung der Schiebetür sind Türstopper aus Stahl und eine Bodenführung im Lieferumfang enthalten. Dieses Set wird inklusive Montagematerial angeboten.
Spitze!
Stimmen Sie das Lochbild der Glastür vorab mit dem Glastürlieferanten ab. Die Maße dazu finden Sie in der Anleitung.





