The HALCÖ roller door system combines robust quality with sleek design and is specially designed for glass sliding doors.
Made from black steel and finished with attention to detail, this system offers a stylish and durable solution for modern interiors.
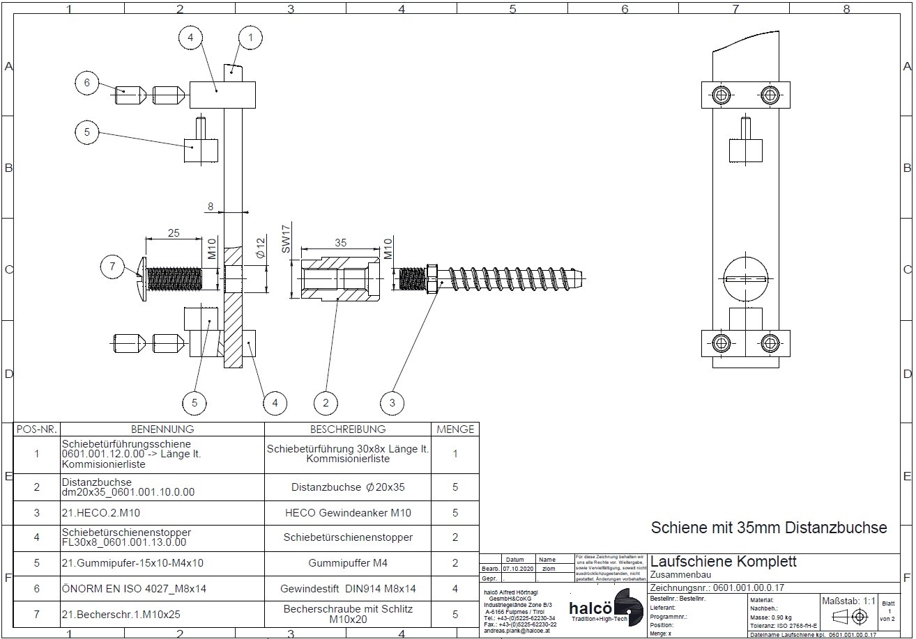
The set comes complete with running rail, two door rollers, stoppers, screws and mounting material. Available in two lengths 1700 mm or 2000 mm. Make your choice in the scroll menu at the top right.
This sliding door set extends 50 mm from the wall and is suitable for doors up to 45 mm thick and weighing 80 kg. Functional, silent and elegant – exactly what you would expect from HALCÖ.
Please look carefully at the technical drawing in the images so that you can place the holes in the door in exactly the right place.
HALCÖ produces all its exclusive products on request in Austria, so you should take into account a delivery time of 4 weeks.
Please note: unique custom work
This sliding door system is handmade using traditional craft techniques. Each piece is therefore unique in shape and finish. Small color and texture differences are inherent to the character of black steel and contribute to the authenticity and charm of this custom work.
| Rail length | 1700 mm |
| Suitable for door width | 800-950 mm |
| Rail length | 2000 mm |
| Suitable for door width | 950-1100 mm |
| Max. door weight | 80 kg. |
| mounting screws | included |
All HALCÖ products are made to order in Austria, with attention to detail and quality. Due to this artisanal production process, the delivery time is approximately 4 weeks.
Please note: each copy is unique
This door handle is handmade using traditional craft techniques. As a result, slight color and finish variations are possible. This is not a production error, but a characteristic of authentic custom work — each piece has its own character and unique appearance.
Black steel requires minimal maintenance. Regular wiping with a soft, dry cloth is sufficient to keep the fittings clean and in good condition. Thanks to the strong finish, the material is highly resistant to rust and retains its characteristic appearance. For optimum protection, we recommend lightly rubbing the fittings with an anti-rust oil once or twice a year. This extends the lifespan and strengthens the protective layer. (See images for maintenance tips)
HALCÖ – Alfred Hörtnagl GmbH & Co KG is a traditional family business from Tyrol with over 85 years of experience in high-quality metalworking. Since 1936, they have been producing everything from elegant wrought iron to modern designs in steel and stainless steel in their own workshop in Fulpmes.
Traditional & atmospheric
Whether it concerns rustic styles or designs that fit perfectly with wooden interiors, we realize black iron living wishes to measure.
Modern & stylish
Prefer a sleek, contemporary design? Discover our collection of fittings in black and fine steel with a minimalist look.
Buy the HALCÖ range at Deurklinkenshop.be and enjoy excellent service at a fair price.









